В избранное
Чертеж парового котла типа ДКВР 6,5-13
- 150 руб.
Артикул:
CN1189
- Есть в наличии
Формат чертежа: А1
Программа АВТОКАД, формат dwg
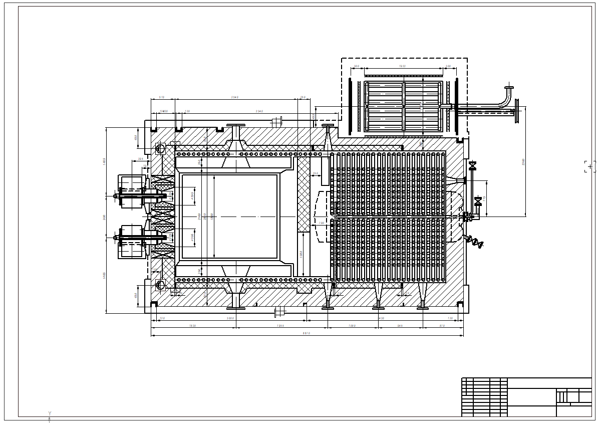
ДКВР 6,5-13 относится к вертикально-водотрубным, двухбарабанным котлам, имеет экранированную топочную камеру и развитый кипятильный пучок из гнутых труб. Для устранения затягивания пламени в пучок и уменьшения потерь с уносом и химическим недожогом топочная камера котла делится шамотной перегородкой на две части: собственно топку и камеру догорания. Между первым и вторым рядами труб котельного пучка котла также устанавливается шамотная перегородка, отделяющая пучок от камеры догорания. Внутри котельного пучка имеется чугунная перегородка, которая делит его на первый и второй газоходы и обеспечивает горизонтальный разворот газов в пучках при поперечном омывании труб. Вход газов из топки в камеру догорания и выход газов из котла – асимметричные. При наличии пароперегревателя часть кипятильных труб не устанавливается; пароперегреватели размещаются в первом газоходе после второго – третьего рядов кипятильных труб.
Котел имеет два барабана – верхний (длинный) и нижний (короткий), между которыми размещен коридорный пучок вертикальных гнутых труб с диаметром 51х 2,5 мм. Трубы завальцованы или заварены в стенки барабанов. Для осмотра барабанов и установки в них устройств, а также для чистки труб шарошками на днище имеются овальные лазы размером 325х400 мм. Барабан внутренним диаметром 1000 мм на давление 14 Мпа (14 кгс/см2) изготавливается из стали 16ГС или 09Г2С и имеет толщину стенки 13 мм. Экраны и кипятильные пучки котла выполняются из стальных бесшовных труб.
Котел имеет следующую циркуляционную схему: питательная вода поступает в верхний барабан по двум питательным линиям, откуда по слабообогреваемым трубам конвективного пучка поступает в нижний барабан. Питание экранов производится необогреваемыми трубами из верхнего и нижнего барабанов. Пароводяная смесь из экранов и подъемных труб пучка поступает в верхний барабан.
Температура газов за котлами (2– 10 т/ч) в пределах 280-340 0С в зависимости от ожигаемого топлива к котлам запроектированы чугунные водяные экономайзеры ВТИ, греющие питательную воду до 138 – 165 0С и охлаждающие дымовые газы до 150 – 180 0С, что позволяет получить КПД 75 – 90%.
Программа АВТОКАД, формат dwg
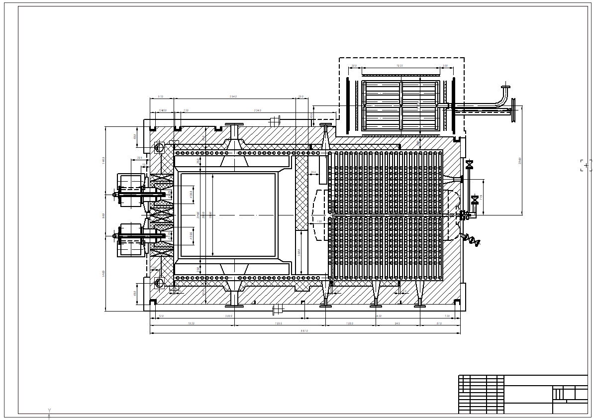
ДКВР 6,5-13 относится к вертикально-водотрубным, двухбарабанным котлам, имеет экранированную топочную камеру и развитый кипятильный пучок из гнутых труб. Для устранения затягивания пламени в пучок и уменьшения потерь с уносом и химическим недожогом топочная камера котла делится шамотной перегородкой на две части: собственно топку и камеру догорания. Между первым и вторым рядами труб котельного пучка котла также устанавливается шамотная перегородка, отделяющая пучок от камеры догорания. Внутри котельного пучка имеется чугунная перегородка, которая делит его на первый и второй газоходы и обеспечивает горизонтальный разворот газов в пучках при поперечном омывании труб. Вход газов из топки в камеру догорания и выход газов из котла – асимметричные. При наличии пароперегревателя часть кипятильных труб не устанавливается; пароперегреватели размещаются в первом газоходе после второго – третьего рядов кипятильных труб.
Котел имеет два барабана – верхний (длинный) и нижний (короткий), между которыми размещен коридорный пучок вертикальных гнутых труб с диаметром 51х 2,5 мм. Трубы завальцованы или заварены в стенки барабанов. Для осмотра барабанов и установки в них устройств, а также для чистки труб шарошками на днище имеются овальные лазы размером 325х400 мм. Барабан внутренним диаметром 1000 мм на давление 14 Мпа (14 кгс/см2) изготавливается из стали 16ГС или 09Г2С и имеет толщину стенки 13 мм. Экраны и кипятильные пучки котла выполняются из стальных бесшовных труб.
Котел имеет следующую циркуляционную схему: питательная вода поступает в верхний барабан по двум питательным линиям, откуда по слабообогреваемым трубам конвективного пучка поступает в нижний барабан. Питание экранов производится необогреваемыми трубами из верхнего и нижнего барабанов. Пароводяная смесь из экранов и подъемных труб пучка поступает в верхний барабан.
Температура газов за котлами (2– 10 т/ч) в пределах 280-340 0С в зависимости от ожигаемого топлива к котлам запроектированы чугунные водяные экономайзеры ВТИ, греющие питательную воду до 138 – 165 0С и охлаждающие дымовые газы до 150 – 180 0С, что позволяет получить КПД 75 – 90%.
Отзывы покупателей